Casa a estrenar, La Barra. Maldonado

116 La Barra, La Barra

U$S 420.000

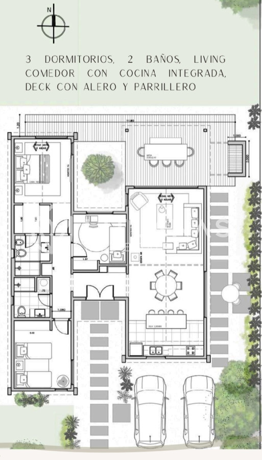
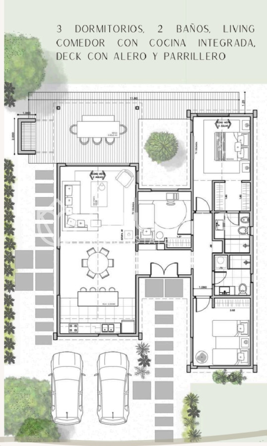
Dormitorios 3 Dormitorios
Baños 2 Baños
Superficie Edificado 132 m2
Superficie de Terreno 500 m2

Descripción

Casa a estrenar, La Barra. Maldonado
Casa en La Barra
Ubicado a 700 metros del Mar.
Cuenta con 3 Dormitorios y 2 Baños.
Cocina : Integrada
Terreno : 500 m2
Edificado : 132 m2

Te invitamos a conocer este nuevo proyecto residencial.

SISTEMA CONSTRUCTIVO: WOODFRAMING
EXTERIORES:
: REVESTIMIENTO EN MADERA DE EUCALIPTUS GRANDIS
TRATADA combinada con placa cementicia
TECHOS:
DE CHAPA PREPINTADA GRIS GRAFITO CON LA AISLACIÓN
TÉRMICA CORRESPONDIENTE
INTERIORES
: CIELORASOS EN LAMBRIZ DE MADERA NATURAL
PISOS De MADERA NATURAL DE EUCALIPTUS GRANDIS PLASTIFICADOS

. PISOS De BAÑOS EN MICROCEMENTO

. PINTURA INTERIOR CON 3 MANOS De INCALEX O SIMILAR

INSTALACIÓN ELÉCTRICA CON MATERIALES DE PRIMERA CALIDAD
TABLERO ELÉCTRICO COMPLETO
. PREVISIÓN PARA ENTRADAS De CABLETV
TOMAS ELÉCTRICAS Y SPOTS LEDS EN EL CIELORRASO DE
YESO
. LUCES EXTERIORES Y PREVISIÓN PARA LUCES Interiores DECORATIVAS
. CANALIZACIÓN PARA CAMARAS DE Seguridad.

SANITARIA: CONEXIÓN A CÁMARA SÉPTICA Independiente.
BAÑOS COMPLETOS CON DUCHA, INODORO CON MOCHILA MARCA FERRUM ,
LAVATORIO Y GRIFERÍA COMPLETA MARCA FV O SIMILAR
ACCESORIOS: PORTARROLLOS, TOALLERO DE MANO Y PERCHA
PREVISIÓN PARA TERMOTANQUE DE AGUA CALIENTE
.
MOBILIARIO: PLACARES COMPLETOS EN DORMITORIOS 1, 2, 3 y
placard de ropa blanca.

Cocina en melamínico de 18mm con mesada de silestone

Electrodomesticos:
ANAFE 4 hornallas
HORNO eléctrico embutido y campana extractora

Mesadas de BAÑO en microcemento o madera
.
climatización:
Estufa de alto rendimiento en living-comedor
.
PREVISIÓN DE Aire acondicionado en todos los dormitorios
.
área exterior
Deck de pino tratado de 1-5 pulgadas de espesor
.Parrillero en mampostería con ladrillo refractario
.
Forma de pago:
10% reserva
60% promesa y posesión
30% con el final en Catastro de la PH.
Consulte con nuestros asesores.

Detalles de la Propiedad

  • Barrio La Barra
  • Distancia al Mar 700
  • Terreno m2 500
  • Edificado m2 132
  • Dormitorios 3
  • Baños 2
  • Cocina Integrada
  • Living Comedor Si
  • Parrillero Si

Gastos e Impuestos